Thiết kế trẻ cho người trẻ
Ngày nay, giới trẻ năng động đã sở hữu cho mình từ rất sớm những căn hộ chung cư cao cấp. Thế nên, các thiết kế căn hộ cũng ngày càng trẻ hóa. Bài viết hôm nay giới thiệu đến bạn đọc một thiết kế phù hợp cho một gia đình trẻ.
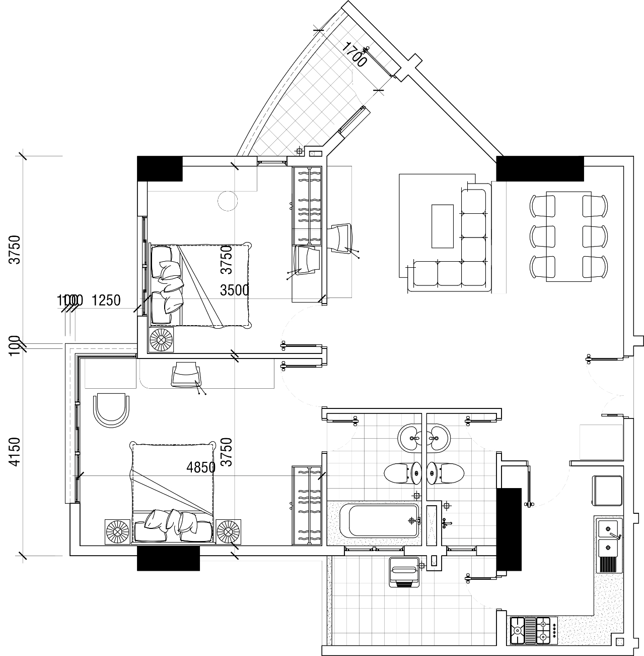
Đôi bạn trẻ mới cưới đã sở hữu cho mình một căn hộ hơn 80m2 tại quận 6, với yêu cầu thiết kế mang nét thanh lịch, trẻ trung với hai màu chủ đạo là trắng và đen.
Với mặt bằng căn hộ có không gian phòng khách rộng mở mang đến sự thông thoáng nhất định cho căn hộ.
Khu bếp được tách riêng trong một phòng biệt lập, bên ngoài là không gian mở cho gia đình sinh hoạt và đón khách.
Bộ sofa dĩ nhiên sẽ chiếm vị trí trung tâm phòng khách, sofa hơi xéo theo góc tường sẽ giúp làm gọn không gian và tiết kiệm diện tích. Khu bàn ăn được bố trí ngay sau đó mang đến sự gần gũi trong sinh hoạt.
Tuy nhiên, để thẩm mỹ hơn chúng tôi đã thiết kế một kệ sách chạy dài sau sofa như một sự ngăn cách nhẹ nhàng không gian nhưng không làm hạn chế tầm nhìn.
Khách hàng có chia sẻ với chúng tôi rằng họ thích những bữa tối lãng mạn cùng nhau vì cô vợ trẻ rất khéo nấu ăn. Vì vậy, một góc nhà hàng thu nhỏ với ánh sáng vàng ấm áp, với nến, với tranh và ít rượu vang sẽ là điểm nhấn hạnh phúc cho cuộc sống gia chủ về sau.
Như đã giới thiệu ban đầu, gian bếp được chủ đầu tư giao đầy đủ cho khách nhưng chủ nhà mong muốn cải tạo thành một không gian nhẹ nhàng hơn, tiện dụng hơn.
Dàn tủ trên ít dùng nên thay các cánh tủ dày đặc thành những kệ ngang và những cánh tủ lộng kính giúp hệ tủ bếp trên trông nhẹ nhàng hơn và có thể trang trí được nhiều hơn. Tuy nhiên, vẫn không thể bỏ qua các bố trí cần thiết cho máy hút mùi hay kệ chén treo.
Phòng ngủ là chốn riêng tư của hai vợ chồng, nên yêu cầu ngay từ đầu là màu trắng đen được sử dụng triệt để. Thoạt nhìn, một mảng kính đen lớn trên đầu nằm có vẻ sẽ nặng nề cho gia chủ, tuy nhiên, nếu dùng vật liệu kính thủy màu thì sẽ tạo được sự nhẹ nhàng, trong trẻo.
Các vật dụng trong phòng sử dụng vật liệu laminate trắng đen tạo độ bóng vừa phải, giúp dễ lau chùi và hạn chế bám bụi.
Vì chưa có thành viên mới trong gia đình, nên căn phòng nhỏ còn lại được thiết kế dành cho khách ghé thăm nhà. Góc đầu giường vướng cây cột to nên thiết kế đã bố trí thêm vài đợt ngang vừa là kệ trang trí vừa che đi khuyết điểm của căn phòng.
Để có một thiết kế đẹp và hợp ý với gia chủ chúng tôi đã trao đổi rất chi tiết với chủ nhà. Vậy bạn đừng ngần ngại chia sẻ ý thích và băn khoăn của mình để chúng tôi có thể tư vấn điều tốt nhất cho bạn.
Tin khác
- 5 mẫu căn hộ “siêu nhỏ” bạn không thể rời mắt
- 5 mẫu căn hộ “siêu nhỏ” bạn không thể rời mắt
- 10 cách để có phòng làm việc đầy phong cách
- 10 cách để có phòng làm việc đầy phong cách
- Bố trí căn hộ 2 phòng ngủ cho 4 người
- Biến phòng khách thành nơi thư giãn tuyệt vời với 6 "từ khóa"
- Nhà đẹp với tường gỗ
- Sang trọng với căn hộ đơn sắc
- 4 lựa chọn cho căn hộ 40m2 rộng thênh thang
- Phòng khách hiện đại cần lưu ý những gì?











