5 mẫu căn hộ “siêu nhỏ” bạn không thể rời mắt
Những mẫu căn hộ mà chúng tôi giới thiệu dưới đây đều có đặc trưng là không gian rất nhỏ nhưng chúng rộng rãi khiến bạn phải ngạc nhiên. Chúng được thiết kế với tiêu chí chung là sàn mở rộng và hạn chế ngăn cách giữa các không gian để tránh cảm giác chật chội. Màu sắc nhẹ nhàng, thanh lịch cũng là yếu tố quan trọng không kém để tạo ra một căn hộ thoáng đãng khi diện tích có hạn.
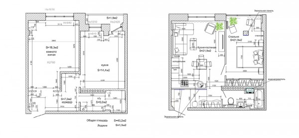
Căn hộ đầu tiên có diện tích chỉ 45m2 của một cặp vợ chồng trẻ. Việc sử dụng các màu sắc trung tính giúp căn phòng có nét đẹp hiện đại mà cũng lâu bị lỗi mốt mà có thể mới mẻ trong nhiều năm.
Căn phòng thứ 2 có diện tích 46m2, màu sắc có điểm nhấn hơn với màu đen xuất hiện có chủ ý tại những khu vực cần tạo điểm nhấn như khu bếp, bàn ăn. Căn hộ này trông khá rộng rãi và nó chỉ gồm 2 phòng chức năng chủ yếu là khu vực sinh hoạt chung và phòng ngủ. Giường gấp được lựa chọn để có thể xếp gọn vào tường khi không cần sử dụng.
Ở căn hộ thứ 3, sự kết hợp tưởng chừng như ngẫu hứng của cặp đôi đen – trắng làm cho nội thất căn hộ khá thú vị.
Căn hộ thứ 4 có trần khá thấp nên bức tường hình học có vai trò như một điểm nhấn để trần nhà trông cao hơn và không gian thoáng đãng hơn.
Và cuối cùng là căn hộ có 1 phòng ngủ chỉ 35m2. Điều đặc biệt là là nó có đầy đủ các khu vực riêng biệt cho sinh hoạt, ăn uống, làm việc và thư giãn. Góc làm việc khá nhỏ nhưng chủ nhà đã khéo léo khắc phục hạn chế bằng cách đặt bàn gần cửa sổ để đón ánh sáng tự nhiên làm bớt cảm giác ngột ngạt.
Tin khác
- Những ý tưởng thú vị với tường phòng ăn trang trí decal
- Mê mẩn với những mẫu sofa siêu đẹp cho nhà chung cư
- Nhà hẹp bỗng rộng thênh thang nhờ nội thất thông minh
- Xu hướng thiết kế nội thất các nước trên thế giới
- 8 ý tưởng làm đẹp cho phòng bếp màu trắng
- 10 cách để có phòng làm việc đầy phong cách
- 10 cách để có phòng làm việc đầy phong cách
- 5 mẫu căn hộ “siêu nhỏ” bạn không thể rời mắt
- 5 mẫu căn hộ “siêu nhỏ” bạn không thể rời mắt
- Thiết kế trẻ cho người trẻ




























